Проект №4 177,8 м.кв.



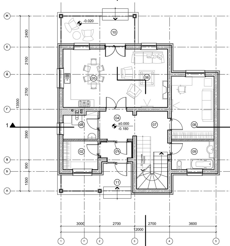
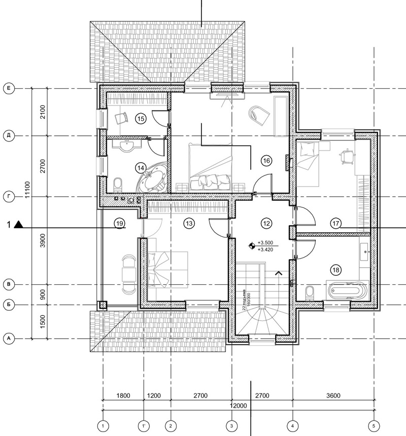
Элегантность, утонченность и аристократичность стали основой при разработке этого проекта загородного дома. Зонирование жилого пространства поражает своей уютностью, продуманностью и рациональностью, но при этом отличается высоким эстетическим исполнением. На двух этажах расположились четыре просторные спальные комнаты, три санузла, а также необходимые для комфортного проживания хозяйственные помещения.

Общая площадь 163,4 м2
Габариты 12,0×13,5 м
Этажность 2
Спален 4
С/у и ванных 3     
 
Тип фундамента Свайное основание или плита
Наружные стены Пеноблоки 375-400 мм + утеплитель 150 мм
Тип перекрытий Ж/б с монолитными участками
Кровля Металлочерепица
Наружная отделка

Декоративная штукатурка и клинкерная плитка.

Данный вид отделки(базовый) входит в стоимость проекта.

Примечание: Имеется возможность пристройки гаража или навеса.

Контакты

Студия дизайна интерьеров Сплайн

Владелец студии и главный архитектор
Екатерина Мелешкова
Телефон: +7 (909) 964-69-96

Дизайн интерьеров в Зеленограде
Проектирование домов в Зеленограде


+7 (909) 964-69-96


kati-meleshkova@mail.ru, spline_2017@mail.ru


FaceBook