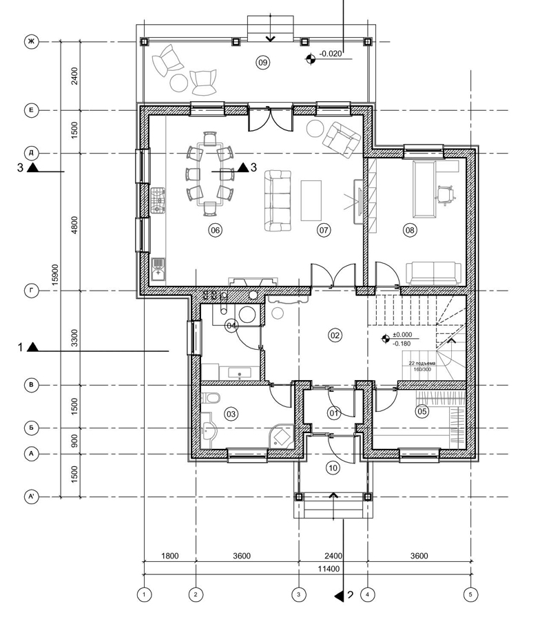
Компактный в плане коттедж с хорошо сбалансированным симметричным главным фасадом предназначен для проживания семьи из 3-6 человек. Архитектурное решение главного входа с небольшими колоннами придают коттеджу элегантный вид.
| Общая площадь |
192,1 м2 |
| Габариты |
11,4 ×15,9 м |
| Этажность |
2 |
| Спален |
4 |
| С/у и ванных |
3 |
| |
| Тип фундамента |
Свайное основание или плита |
| Наружные стены |
Пеноблоки 375-400 мм + утеплитель 150 мм |
| Тип перекрытий |
Ж/б с монолитными участками |
| Кровля |
Металлочерепица |
Наружная отделка: В готовом проекте предусмотрена базовая отделка с применением декоративной штукатурки. Возможны различные варианты отделки фасада с использованием декоративного камня, клинкерной плитки, элементов архитектурного декора, дерева. Проект отделки фасадов оплачивается дополнительно к стоимости рабочей документации проекта и составляет от 5 000 руб. за проект.
Примечание: Имеется возможность пристройки гаража или навеса.
|